Reforma integral y diseño de arquitectura para nuestra propia casa.


Pablo Casas. Pintura Izq. Interior al aire libre1892. Pintura Drcha. Sin titulo

Los recuerdos esenciales.
–Una casa en crudo
Una casa hecha desde el respeto a la esencia y la búsqueda del espacio y la luz más óptimos para hacer un espacio habitable desde la máxima flexibilidad y confort.
La tarea de desnudar el espacio hasta dejarlo en lo esencial. Descubrir la estructura de hormigón, llegar al suelo original de baldosas hidráulicas verde salvia y embalsamar las paredes emperlitadas para disfrutar de los materiales en crudo, lo natural, sin maquillaje.
Es una casa hecha con una sensibilidad especial por cómo es, por cómo fue. Respetando su imperfección y su historia hasta ponerla de manifiesto sin complejos.

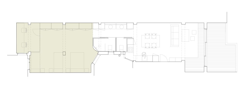
–Sin jerarquía ya que a nuestro modelo de vida no le gustan las particiones, el espacio es único.
El resultado es una casa-loft, sin particiones, con múltiples posibilidades de uso.
- A sur, la zona de día con el espacio de salón-comedor-cocina. Todo en uno. Esta zona disfruta de un espacio que llamamos ‘colchón climático’ que desdibuja el límite entre el interior de la casa y la terraza como espacio exterior. La terraza ya no es terraza, se convierte en un ‘interior al aire libre’ como las pinturas de espacios domésticos de Ramón Casas, pintor modernista catalán que tan bien plasmó estos espacios vivideros difusos.
- A norte, la zona de noche donde un único espacio acoge la zona de descanso, juegos y vestidor.
Dos espacios principales, la zona Sur de dia y la zona Norte de noche con la zona de núcleos humedo como espacio compartido que da servicio a ambas.
–Zona Sur




–Nucleos Humedos.


Ambas zonas comparten y a la vez se dividen por un elemento central que alberga los núcleos húmedos. Un aseo para la zona de dia, un baño completo para la zona de noche. Con la particularidad de que los lavamanos salen fuera, con el doble objetivo de eliminar el pasillo como mera zona de paso y para duplicar la simultaneidad de uso de los baños. Para ello, estos lavamanos forman parte del mobiliario de la casa, son bonitos, se enseñan.


–Zona Norte

El único espacio cerrado de la casa es la zona de trabajo, materializada en una burbuja de madera, se ideó para ‘trabajar dentro de un armario’.
Toda la madera de la casa se piensa como espacio-almacenaje. Cocina, armarios, altillos, incluso la extensión de tarima del suelo de la terraza hacia el salón es un arcón oculto para almacenaje de utensilios de jardinería y juguetero.
Madera de roble, tarima de pino, encimera de cuarcita natural, acabados de baldosas hidráulicas, suelo de cemento pulido, paredes sin pintura y barniz ecológico. Una casa para ir descalzo, sin barreras, donde todo fluye y nada se oculta. Tratar el espacio desde el punto de vista del cuerpo.


-El almacenaje como espacio colchón.


-Trabajar en casa.



Fotografías: by HOUZZ




